Apartamento T1 novo com parqueamento nas Laranjeiras, Lisboa

Lisboa, Lisboa, São Domingos de Benfica

Apartamento T1 novo com parqueamento nas Laranjeiras, Lisboa
Voltar\Apartamento T1 novo com parqueamento nas Laranjeiras, Lisboa - Lisboa, Lisboa, São Domingos de Benfica
Enviar imóvel a amigo
Saber mais »
captcha
Campos obrigatórios *
Arrendado
Seguir imóvel Receba um alerta quando existir uma Baixa de Preço
Nome
Insira o código da imagem
captcha
Código
Apartamento T1 novo com parqueamento nas Laranjeiras, Lisboa 1 450 € Ref: S-3110/2|Licença de Utilização: 34
1
1
76 m²
86 m²
Apartamento T1 a estrear com um lugar de parqueamento na emblemática Estrada da Luz, Laranjeiras, Lisboa.

Inserido num empreendimento novo com 2 elevadores.

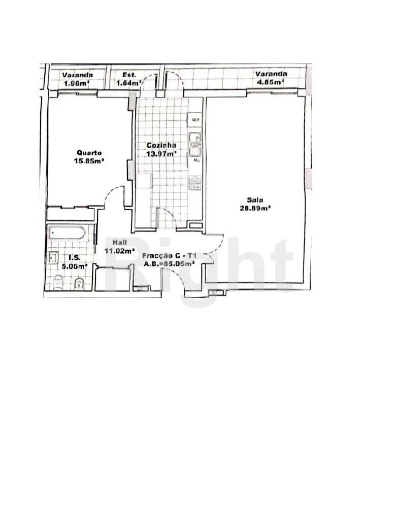
Hall, sala, cozinha totalmente equipada, varanda com acesso a sala e cozinha, zona de estendal/arrumos, quarto com roupeiro embutido e acesso a varanda, casa de banho completa.

Ar condicionado
Estores elétricos em alumínio com isolamento térmico
Caixilharia em alumínio com corte térmico e vidros duplos
Porta de entrada de alta segurança (dupla fechadura)
Videoporteiro interior
Aspiração Central
Pavimento flutuante (quarto, sala e corredor)

Situado nas Laranjeiras, a poucos minutos do centro de Lisboa.
Excelentes acessos rodoviários e transportes públicos (metro, autocarros), proximidade de escolas, universidades, hospitais público e privado (Lusíadas, Luz), Aeroporto, comércio, serviços, Parque Bensaúde e espaços de lazer.

Este apartamento oferece o equilíbrio perfeito entre tranquilidade e vida urbana.

Fotografias modelo.
Tipo de imóvel Apartamento
Tipologia 1 Quarto
Objetivo Arrendamento
Estado Novo
Preço 1 450 €
Ano Construção 2025
País Portugal
Distrito Lisboa
Concelho Lisboa
Freguesia São Domingos de Benfica
Zona Laranjeiras
Interessado no Imóvel?
Data
Hora
Nome
Contacto
Mensagem
captcha
Código
Características Gerais
Gerais
  •  
Divisões
Divisões Área Pavimento Paredes Tectos Observações
 
Meio Envolvente
  •  
Facilidades
  •  
Domótica
  •  
Energias Renováveis
  •  
Será do seu interesse?
  • Apartamento T1 na Graça Histórica
  • Apartamento T1 na Graça Histórica
  • Apartamento T1 na Graça Histórica
  • Apartamento T1 na Graça Histórica
  • Apartamento T1 na Graça Histórica
Exclusivo
Apartamento T1 na Graça Histórica
Lisboa, Lisboa, São Vicente
220 000 €
Apartamento T1 na Graça Histórica
220 000 €
Apartamento T1 na Graça Histórica Lisboa, Lisboa, São Vicente
1
46 m² A. Útil
Contactar
  • Apartamento T3 em Benfica, na  avenida do uruguai, Lisboa
  • Apartamento T3 em Benfica, na  avenida do uruguai, Lisboa
  • Apartamento T3 em Benfica, na  avenida do uruguai, Lisboa
  • Apartamento T3 em Benfica, na  avenida do uruguai, Lisboa
  • Apartamento T3 em Benfica, na  avenida do uruguai, Lisboa
Apartamento T3 em Benfica, na  avenida do uruguai, Lisboa
3
2
124 m² A. Bruta Privada
109 m² A. Útil
Contactar
  • Apartamento T2 totalmente reabilitado em São Domingos de Benfica
  • Apartamento T2 totalmente reabilitado em São Domingos de Benfica
  • Apartamento T2 totalmente reabilitado em São Domingos de Benfica
  • Apartamento T2 totalmente reabilitado em São Domingos de Benfica
  • Apartamento T2 totalmente reabilitado em São Domingos de Benfica
Apartamento T2 totalmente reabilitado em São Domingos de Benfica
Lisboa, Lisboa, São Domingos de Benfica
570 000 €
Apartamento T2 totalmente reabilitado em São Domingos de Benfica
570 000 €
2
2
70 m² A. Bruta
85 m² A. Útil
Contactar
Estamos disponíveis para o ajudar Pretendo ser contactado
Data
Hora
Nome
Contacto
Mensagem
captcha
Código
O que é a pesquisa responsável
Esta pesquisa permite obter resultados mais ajustados à sua disponibilidade financeira.